欢迎访问我们站点,为您提供精密注塑出口模具一站式设计服务!
我们需要了解什么是2D加工图。简单来说,2D加工图是一种以平面图形为基础的加工工艺图,它描述了零件的形状、尺寸、公差和表面粗糙度等信息。2D加工图是模具设计的基础,它为模具制造提供了详细的技术要求和指导。接...
全国服务热线:
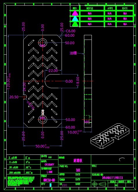
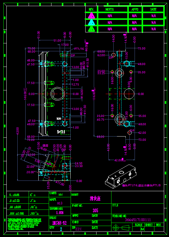
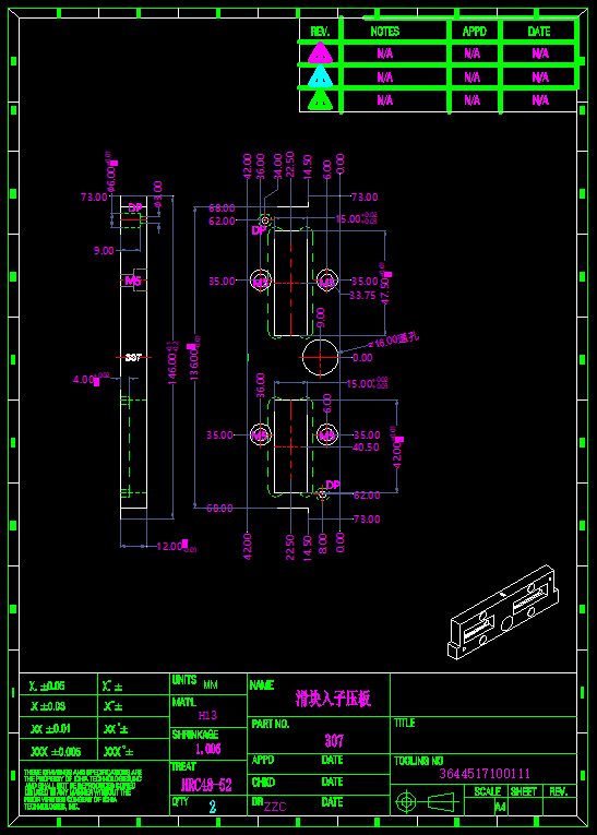
我们需要了解什么是2D加工图。简单来说,2D加工图是一种以平面图形为基础的加工工艺图,它描述了零件的形状、尺寸、公差和表面粗糙度等信息。2D加工图是模具设计的基础,它为模具制造提供了详细的技术要求和指导。
接下来,我们将详细介绍模具配件的2D加工图中的一些关键要素:
1. 尺寸标注:尺寸标注是2D加工图中最基本的元素,它直接反映了零件的大小和形状。尺寸标注包括线性尺寸、角度尺寸和圆弧尺寸等。在标注尺寸时,应遵循国家标准和行业规范,确保尺寸的准确性和一致性。
2. 形状和位置公差:形状公差是指零件的实际形状与理论形状之间的最大允许误差;位置公差是指零件的实际位置与理论位置之间的最大允许误差。形状和位置公差是保证零件质量的关键因素,它们直接影响到模具的装配和使用性能。
3. 表面粗糙度:表面粗糙度是指零件表面的微观几何形状特征,它反映了零件表面的光滑程度。表面粗糙度对零件的耐磨性、抗疲劳性和密封性能等有重要影响。在2D加工图中,通常使用Ra(轮廓算术平均偏差)来表示表面粗糙度。
4. 材料和热处理状态:在2D加工图中,需要明确零件的材料和热处理状态。材料的选择直接影响到零件的性能和使用寿命;热处理状态则决定了零件的组织结构和力学性能。
5. 加工工艺和技术要求:在2D加工图中,还需要描述零件的加工工艺和技术要求。加工工艺是指在加工过程中所采用的切削方法、夹具、刀具等;技术要求是指对零件加工精度、表面质量等方面的具体要求。