欢迎访问我们站点,为您提供精密注塑出口模具一站式设计服务!
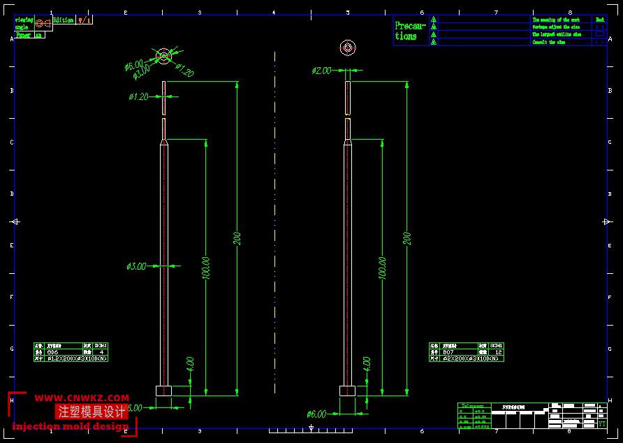
注塑模具的2D加工图是指在模具设计过程中,使用CAD软件生成的二维平面图形。这些图形包括模具的各个组件,如前后模仁、螺丝、运水、顶针、线割图、模胚等,以及它们的加工细节和标注。2D加工图是模具制造的基础,为制...
全国服务热线:
注塑模具的2D加工图是指在模具设计过程中,使用CAD软件生成的二维平面图形。这些图形包括模具的各个组件,如前后模仁、螺丝、运水、顶针、线割图、模胚等,以及它们的加工细节和标注。
2D加工图是模具制造的基础,为制造者提供了模具结构的全面视角。同时,它也是检查和验证模具设计合理性的重要工具。通过2D加工图,可以检查各部件的位置、大小、形状等是否符合设计要求,是否能够达到预期的注塑效果。
一个合格的模具设计工程师需要具备创建整套3D模具的能力,同时也要能够合理地创建整套3D加工图。这些加工图包括各种模具组件的详细视图、尺寸标注、公差标注等,以确保模具的制造精度和符合设计要求。
总之,注塑模具的2D加工图是模具设计的重要组成部分,它为制造者提供了详细的模具结构信息,是指导模具制造的重要工具。